Dwarsloeper - Baabe
Preview only — see all hotel photos
See all 29 photos
Hotel a térképen
Dwarsloeper - Baabe
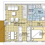
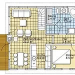
A Dwarsloeper - Baabe Villa szaunával várja a pihenni vágyó vendégeket.
A Seebrücke Sellin 3 km-re, a Sellini Borostyánmúzeum pedig 2 km-re van a villától. A 0 hálószobás szálláshely olyan természeti látnivalókhoz is hozzáférést biztosít, mint a nagyjából egy 10 perces autóútra található Friedensberg üdülőpark.
A Baabe városi szállás fürdőszobái mosógépet és zuhanyzót is magukba foglalnak.
A Dwarsloeper - Baabe Villa a teljesen felszerelt konyhában a mosogatógépet és sütőt is tartalmazza, mely a vendégek számára biztosított, hogy könnyedén elkészíthessék saját ételeiket. A Cafe Klatsch csupán 400 méter távolságra található. A legközelebbi buszmegálló a Haltepunkt 9 Strandpark, pillanatokra a szálláshelytől.
Felszereltség
Főbb kényelmek
- Ingyenes Wifi
- Privát strand
- Háziállat megengedett
Szolgáltatások
- Nemdohányzó
- Ingyenes Wi-Fi a nyilvános területeken
- Parkoló
- Háziállat engedélyezett
- Elektromos vízforraló
- Strand hozzáférés
- Mosógép
Irányelv
Térkép
Helyi látnivalók
Látványosságok
- az Amber tengerparti sétány (2351 km)
- Amber museum (2,5 km)
- Eisenbahnmuseum Gohren (2067 km)
- Gohren Pier (2065 km)
- Dunengolf Gohren (1918 km)
- Dunengolf (1993 km)
- Seaside Promenade (2314 km)
- Strande (2320 km)
- Zeltplatzkino (1498 km)
Repülőterek
- Heringsdorf Airport (165 km)
Értékelések
100% -ban ellenőrzött vélemények